3-к, Папанинцев, 25/1 Показать на карте
Соцгород
Первоуральск
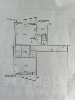
Подходит под семейную ипотеку 6%!!!!!Продаётся 3комнатная квартира, свободная планировкаПлощадь: 91,16 м²Этаж: 5/16Состояние черновая (предчистовая отделка, бетонные стены) полностью под ваш ремонтРасположение и инфраструктура''Дом на Папанинцев'' (ул. Папанинцев 25/1) монолитнокирпичный дом с 16 этажами, построен в 2023 году. Дом находится в тихом и благоустроенном микрорайоне, рядом площадь, остановка, магазины, мед.городок.Детские сады и школы (на улице Папанинцев и рядом)Супермаркеты, торговые точки, аптекиВаши возможностиПроектируйте посвоему: распланируйте пространство под кухнюгостиную, 2 спальни, зону кабинет, гардероб и т.п.Инвестиция в комфорт: квартира у современного дома ''комфорткласса''. Ожидаемый рост стоимости и удобства плюс для жизни и сдачи.Панорамное жильё: большая площадь и высокий потолок пространство и лёгкость.Звоните для просмотра! Квартира без отделки шанс создать уют именно под ваш вкус.Арт. 107754009
91 м2
5 / 16 этаж
Монолит
- Показать контакты
- Добавить в избранное
91 м2
5 / 16 этаж
Монолит
9 500 000
104 212 /м2
