Если цена в объявлении изменится, мы сразу сообщим вам об этом на электронную почту.
Нажимая «Подписаться», вы соглашаетесь с правилами.
продам дом, Березка КС, 1226 300 000 ₽
22 апр 2025
Дата публикации объявления
Обн. 12 июня 2025
Дата обновления объявления
69
Количество просмотров (+ просмотры за сегодня)
96 923 ₽/м²
Чистая продажа
Термин "Чистая продажа" означает, что в квартире никто не прописан или
есть куда выписаться и вывезти вещи. Это лучший вариант для покупателя.
Вероятность срыва сделки минимальна.
Этажей1
Площадь участка6 соток
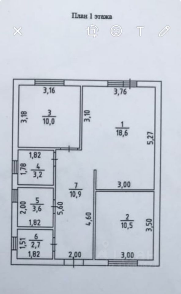
Общая площадь65 м2
Материал домабетонные блоки
ЭлектричествоЕсть
Газоснабжениенет
Продаю дом 65 кв.м. Возможна семейная ипотека. Две спальни, кухня-гостинная, гардеробная, совмещенный санузел, сантехническая комната. Категория земель - садоводческое некоммерческое товарищество, Фундамент - монолитная плита с армированием (ячейка 20х20мм - 2 ряда) стекловолокно с металлической арматурой, стены - твинблок 300мм каждый третий ряд арматура 12мм, утеплитель стен - фасадный пенопласт 50мм, штукатурка короед, краска. Армопояс - заводской бетон м300 по всему периметру дома, Крыша - мягкая кровля ондулин, холодный чердак, Водоснабжение - скважина, Инженерные системы - разводка электрики, теплые водяные полы по всему периметру + радиаторы в каждой комнате. Теплый пол и радиаторы включаются отдельно (на выбор).
Продаю дом 65 кв.м. Возможна семейная ипотека. Две спальни, кухня-гостинная, гардеробная, совмещенный санузел, сантехническая комната. Категория земель - садоводческое некоммерческое товарищество, Фундамент - монолитная плита с армированием (ячейка 20х20мм - 2 ряда) стекловолокно с металлической арматурой, стены - твинблок 300мм каждый третий ряд арматура 12мм, утеплитель стен - фасадный пенопласт 50мм, штукатурка короед, краска. Армопояс - заводской бетон м300 по всему периметру дома, Крыша - мягкая кровля ондулин, холодный чердак, Водоснабжение - скважина, Инженерные системы - разводка электрики, теплые водяные полы по всему периметру + радиаторы в каждой комнате. Теплый пол и радиаторы включаются отдельно (на выбор). Во всех помещениях можно выставлять разную температуру. Электрокотел 9кВт, водонагреватель 100л, Вентиляция - приточно-вытяжная, Пол - сухая стяжка 50мм, Канализация - выгребная яма 3 куб.м., Окна - двухкамерные стеклопакеты, Дверь с терморазрывом, Дом находится в черте города (ЕКАД 3 км), прописка Чкаловского района, рядом находятся магазин Сима-Ленд, Гиппер ДНС, Мега-Детки, аэропорт Кольцово, Дом готов к жизни, ни каких вложений не требует, ремонт под ключ, остается только покрасить стены или наклеить обои, Потолок - натяжной матовый, Удобство продуманное до мелочей В доме много розеток, все узлы управления находятся в сантехнической комнате, что сохраняет внешний вид других помещений, также там находится место для стиральной машинки, чтобы не занимать место в ванной комнате. В ванной комнате сделан ремонт: керамогранит, установлена вся сантехника (подвесная тумба с раковиной, зеркало с подсветкой, акриловая ванна, смесители, инсталляция, левая стена теплая - смонтирован на стену электрический теплый кабель, что заменит полотенцесушитель, установлен бесшумный вытяжной электровентилятор). Межкомнатные двери - белый экошпон, Пол - ламинат (цвет канадская сосна), Удобное расположение - Дом находится на территории СНТ ''Березка'', до города на машине не спеша 15 минут, Инфраструктура - на территории СНТ есть продуктовый магазин, автоматические ворота, видеонаблюдение, организован вывоз мусора, чистка дорог зимой, освещение на всей территории сада. ПРЕДЛАГАЮ ПОСМОТРЕТЬ И ПОЧУВСТВОВАТЬ КОМФОРТ, ТЕПЛО И УЮТ ЭТОГО ДОМА. Варианты оплаты: наличные, ипотека. Торг.