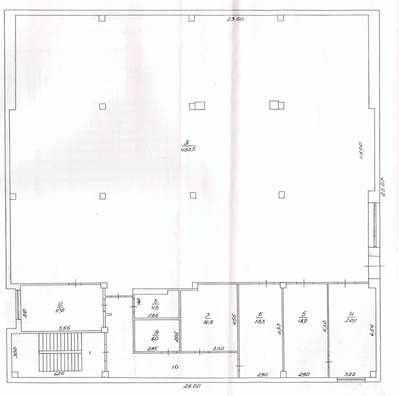
Продаются нежилые помещения в 2-эт. здании, в том числе: - помeщения на 2 этaже: общая площадь 591 кв. м. (кад. 66:58:0106001:12539). - места общего пользования (вход, холл) - 5910/16496 доли в праве на нежилое помещение общей площадью 16,3 кв. м. (кад. 66:58:0106001:12540)-5,8 кв.м.
Год постройки -1993. Центpальные коммуникации, высокие потолки. Под офис, арендный бизнес, услуги, торговлю.
Земельный участок- 5968/17145 доли в праве собственности на земельный участок, общей площадью 3355 кв. м. (кадастровый 66:58:0106001:12500).
В окружении социальная и коммерческая инфраструктура: магазины, школы, многоквартирные жилые дома. Предположительное использование: офисы, арендный бизнес, услуги, торговля.
Продаются нежилые помещения в 2-эт. здании, в том числе: - помeщения на 2 этaже: общая площадь 591 кв. м. (кад. 66:58:0106001:12539). - места общего пользования (вход, холл) - 5910/16496 доли в праве на нежилое помещение общей площадью 16,3 кв. м. (кад. 66:58:0106001:12540)-5,8 кв.м.
Год постройки -1993. Центpальные коммуникации, высокие потолки. Под офис, арендный бизнес, услуги, торговлю.
Земельный участок- 5968/17145 доли в праве собственности на земельный участок, общей площадью 3355 кв. м. (кадастровый 66:58:0106001:12500).
В окружении социальная и коммерческая инфраструктура: магазины, школы, многоквартирные жилые дома. Предположительное использование: офисы, арендный бизнес, услуги, торговля.
Есть возможность размещения рекламной конструкции на торцевой части здания, подключения высокоскоростного интернета, городского номера телефона.
Продажа от собственника - ПАО ''Ростелеком''. Цена указана с учетом НДС 22%. Условия уточняйте по телефону.