магазин, выставочный зал, салон красоты, парикмахерская, кафе, бар, ресторан
Объект N 187617. Продаётся эксклюзивное помещение в ЖК Депо. Помещение свободного назначения находится на -1 и 1 этаже. Это двухуровневое помещение открывает для собственника обширный полет фантазии, для реализации своего бизнеса.
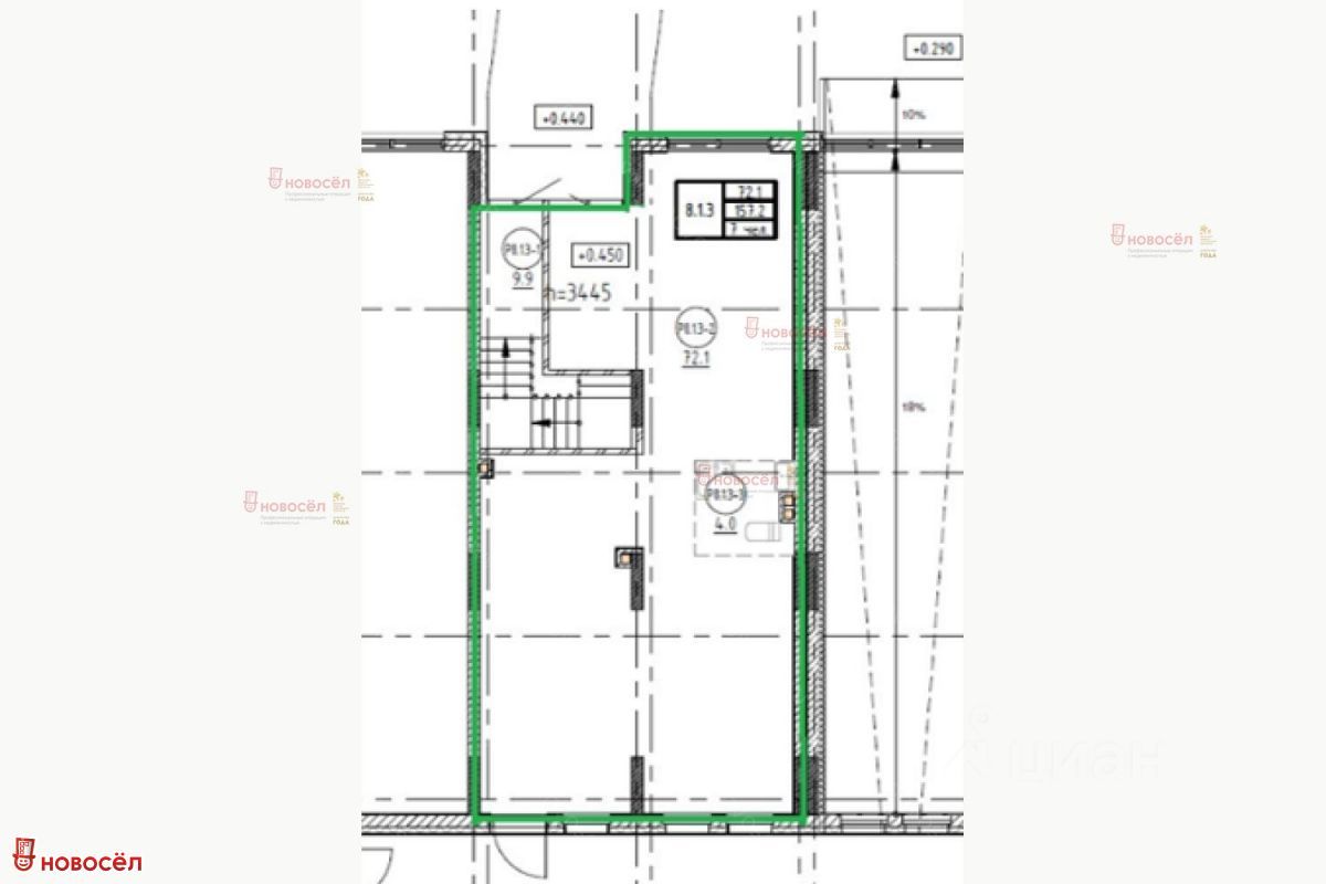
На 1 этаже отдельный вход в помещение, расположенное на первом этаже и спуск на -1 этаж. Общая площадь помещения -162,2 кв.м, из них 71,2 кв.м площадь -1 этажа, и 91 кв.м площадь 1 этажа. Высота потолков- 3,7 м.
На 1 этаже входная группа с остеклением в пол, выходит на улицу Пехотинцев, четыре окна выходят во двор жилого комплекса. Отдельная входная группа с выходом на тротуар и прогулочную зону создает отличный пешеходный трафик, а строящийся напротив квартал только усилит посещаемость и узнаваемость вашего бизнеса.
Объект N 187617. Продаётся эксклюзивное помещение в ЖК Депо. Помещение свободного назначения находится на -1 и 1 этаже. Это двухуровневое помещение открывает для собственника обширный полет фантазии, для реализации своего бизнеса.
На 1 этаже отдельный вход в помещение, расположенное на первом этаже и спуск на -1 этаж. Общая площадь помещения -162,2 кв.м, из них 71,2 кв.м площадь -1 этажа, и 91 кв.м площадь 1 этажа. Высота потолков- 3,7 м.
На 1 этаже входная группа с остеклением в пол, выходит на улицу Пехотинцев, четыре окна выходят во двор жилого комплекса. Отдельная входная группа с выходом на тротуар и прогулочную зону создает отличный пешеходный трафик, а строящийся напротив квартал только усилит посещаемость и узнаваемость вашего бизнеса.
Данное помещение подойдет под различные виды бизнеса, это может быть и кафе и магазин , так же можно использовать как офис, салон красоты, аптеку и еще многое другое. Звоните и приходите на просмотр этого эксклюзивного помещения.