Если цена в объявлении изменится, мы сразу сообщим вам об этом на электронную почту.
Нажимая «Подписаться», вы соглашаетесь с правилами.
продам коттедж, Яблоневая, 3245 000 000 ₽
11 фев
Дата публикации объявления
Обн. 23 мар
Дата обновления объявления
8
Количество просмотров (+ просмотры за сегодня)
239 872 ₽/м²
Чистая продажа
Термин "Чистая продажа" означает, что в квартире никто не прописан или
есть куда выписаться и вывезти вещи. Это лучший вариант для покупателя.
Вероятность срыва сделки минимальна.
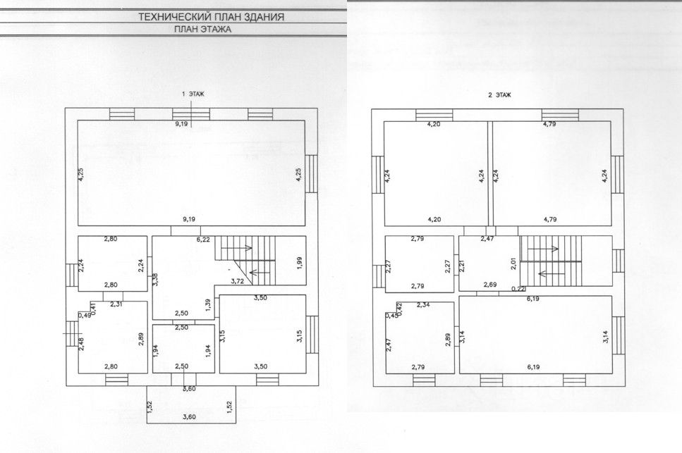
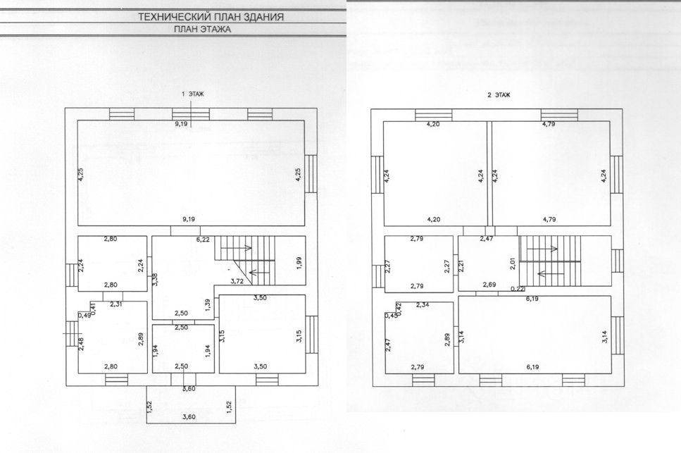
Этажей2
Площадь участка31,09 соток
Общая площадь187,6 м2
ЭлектричествоЕсть
Газоснабжениецентральное
Продаётся новый дом площадью 187,6 кв. м (по кадастру вместе с крыльцом) на участке 3109 кв. м в закрытом посёлке. Объект выполнен на уровне дорогого индивидуального строительства, без упрощений по материалам и инженерии. В доме никто не жил.
Дом подключён к собственной скважине глубиной 45 метров, электричеству 30 кВт, станции биологической очистки Тверь. Оптоволокно заведено в котельную. Участок под видеонаблюдением.
Реализована система умного дома с управлением светом, отоплением, тёплыми подоконниками, шторами, охранной сигнализацией через приложение и\или голосом. Предусмотрена автоматическая поддержка температуры, сигнализация и видеонаблюдение.
Продаётся новый дом площадью 187,6 кв. м (по кадастру вместе с крыльцом) на участке 3109 кв. м в закрытом посёлке. Объект выполнен на уровне дорогого индивидуального строительства, без упрощений по материалам и инженерии. В доме никто не жил.
Дом подключён к собственной скважине глубиной 45 метров, электричеству 30 кВт, станции биологической очистки Тверь. Оптоволокно заведено в котельную. Участок под видеонаблюдением.
Реализована система умного дома с управлением светом, отоплением, тёплыми подоконниками, шторами, охранной сигнализацией через приложение и\или голосом. Предусмотрена автоматическая поддержка температуры, сигнализация и видеонаблюдение. Дом подходит как для постоянного проживания, так и для сезонного использования без риска заморозки системы или потери контроля.
Первый этаж отапливается радиаторами и водяным тёплым полом, на полу Испанский керамогранит colorker nomade noir. Второй этаж отапливается радиаторами, уложена паркетная доска Barlinek Дуб Mersey Medio. Подоконники с подогревом, покрыты керамогранитом.
Освещение от Центрсвет и ArtLine. В санузлах плитка с водяным подогревом, установлены трапы TECE. Смесители Grohe и Hansgrohe, гигиенические души ALLEN BRAU PRIORITY, ванна Salini. Короба выполнены профилем TECE.
Высота потолков 3 метра, выполнены из гипсокартона с теневым профилем. Вдоль окон ниши под шторы и подсветку. Теневой профиль установлен между стенами и полом и повторяется по низу дверей скрытого монтажа, формируя ровную линию при закрытой двери.
Окна ориентированы на все четыре стороны света, благодаря чему дом наполнен естественным светом в течение всего дня и остаётся светлым даже в пасмурную погоду. Из всех окон второго этажа открывается вид на лес.
На участке достаточно места для строительства большого гаража на несколько автомобилей и банного комплекса. Есть возможность подключения газа. Газовый котёл установлен, подключён к системе отопления и интегрирован в умный дом. Необходимо завести трубу в дом от вывода, расположенного рядом с участком.
Дом рассчитан на владельца, который ценит качество инженерии, масштаб участка, приватность и продуманность каждого решения.